Fallingwater: Frank Lloyd Wright's Symphony with Nature
Perched dramatically over a Pennsylvania waterfall, this iconic residence exemplifies organic architecture through innovative design and technical prowess, blending human ingenuity with the earth's raw beauty.


FALLINGWATER HOUSE + Image by TIMOTHY NEESAM
Fallingwater emerges as a testament to Frank Lloyd Wright's visionary approach, where architecture does not conquer nature but dances in unison with it. Commissioned in 1934 by Edgar Kaufmann Sr., a Pittsburgh department store magnate, the residence served as a weekend retreat for his family amidst the lush Laurel Highlands of southwestern Pennsylvania.
Wright, then in his late sixties and seeking a resurgence in his career, designed the house in 1935, with construction spanning from 1936 to 1939. The site, along Bear Run stream in Mill Run, featured a 30-foot waterfall that Wright chose to integrate directly into the living experience, allowing the sound of cascading water to permeate every room.


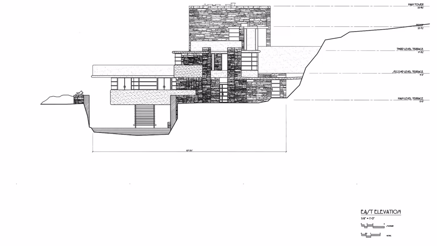
At the heart of Fallingwater's design lies its bold cantilevered structure, a series of reinforced concrete terraces that project outward like natural rock ledges, anchored firmly to a central masonry core of locally quarried Pottsville sandstone. This central chimney mass, rising vertically through the house, provides structural stability while echoing the site's rugged topography. The cantilevers, formed from concrete mixed with cement, sand, and rounded river gravel, rely on embedded steel reinforcement rods laid in crossed formations to distribute loads and resist bending moments.
Wright's innovative use of these materials pushed the boundaries of early 20th-century engineering, creating expansive, unsupported spans that extend up to 15 feet over the falls. However, initial calculations revealed the beams were under-reinforced, leading to deflections and cracks over time; subsequent preservations in the 2000s involved post-tensioning cables to restore integrity, ensuring the structure's longevity against environmental stresses like humidity and freeze-thaw cycles.


The residence's spatial organization fosters a profound connection between inhabitants and their surroundings. Horizontal planes of concrete contrast with vertical stone elements, creating a rhythmic composition that blurs interior and exterior boundaries through expansive plate glass windows and cornerless glazing. Natural ventilation flows through operable sash windows, while passive solar strategies harness sunlight for warmth.
Inside, Wright employed a palette of organic materials, including cypress wood for built-in furnishings and flagstone floors that seamlessly transition to outdoor terraces. The main living level features a spacious great room with a boulder hearth emerging from the earth, symbolizing the site's geological essence.


Technically, Fallingwater's foundation embeds into bedrock ledges, with concrete footings supporting the cantilevered trays via parabolic steel reinforcements that curve to follow stress paths. This biomimetic approach mimics natural efficiencies, distributing gravitational forces through tension and compression.
Despite early structural challenges, where deflections reached several inches, the design's resilience highlights Wright's daring experimentation. Preservation efforts continue to address material deterioration, such as corrosion in steel frames and erosion in sandstone, using compatible repairs to maintain authenticity.




In essence, Fallingwater transcends mere shelter to become a living entity, where human habitation harmonizes with the perpetual motion of water and forest. Wright's masterpiece invites occupants to immerse themselves in nature's embrace, proving that thoughtful design can elevate everyday life into an artful dialogue with the environment. Through its technical innovations and poetic integration, the residence endures as a beacon of organic architecture, inspiring generations to build with empathy toward the earth.























